Двокімнатна квартира в центральній частині міста
Характеристики:
К-сть кімнат
Площа
Поверх
Стан
Забудовник
Район
Вулиця
ЖК
ID об'єкта
2
65м²
2/12
Сирець
Спілка забудовників
Княгинин
Княгинин
Княгинин
1441
52 000$
Опис:
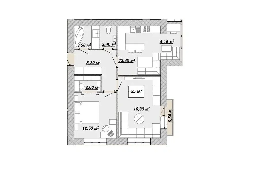
Продається двокімнатна квартира з чудовим плануванням в ЖК «Княгинин».
Загальна площа квартири складає 65м2. Квартира має: дві окремі кімнати, велику кухню та просторий санвузол.
У вартість квартири входить:
-утеплення цегляних стін 10-сантиметровим шаром
niHonnacTy
-восьмикамерні металопластикові вікна з подвійним
склопакетом та енергозберігаючим склом, товщиною
профілю 92 мм
-вхідні броньовані двері
стяжка підлоги
-штукатурка стін
-встановлення лічильників обліку води, газу та
електроенергії.
Комплекс розташований поблизу центру в тихому районі.Поблизу є все необхідне магазини, школи, дитячі садки, зупинки громадського транспорту.
За детальнішою інформацією телефонуйте.
.jpg)
Менеджер
Денис
Слива
+380 (96) 543 14 97
Замовте дзвінок експерта
Вкажіть свої контакти і наш менеджер звʼяжеться з вами
Замовити дзвінок








